- About Council
- Have your say
- Contact us
- Job vacancies
- Partners and advisory groups
- News and information
- Meetings
- Plans and reports
- Services and Requests
- Projects
Te Ara Whetū – a new library hub for Waikanae
We're delivering a modern, accessible community library for Waikanae.
After listening to the community’s feedback and considering several building options, Council agreed to refurbish and extend the former library. The building will be developed into a modern library and community hub.
What's new
June 2025 – Updated floor plans and concept video released
Following the completion of the developed design phase, we're excited to share with you the updated floor plans and concept video. The concept video shows how the library will look, the colours and materials that will be used as well as the slightly altered layout.
Architects Studio Pacific have now moved to the detailed design stage of the process. This stage involves completing the design to a level that defines the quantity and quality of all building elements, materials and systems through drawings, specifications, and schedules ready to lodge for building consent. The design will be refined to ensure construction costs fit within our available budget.
Lead contractor Naylor Love plans to begin enabling works in June. These works will prepare the way for the main construction work to begin once building consents are in place and the construction contract is finalised. Early works include removing asbestos, excavating for new foundations and further building investigations.
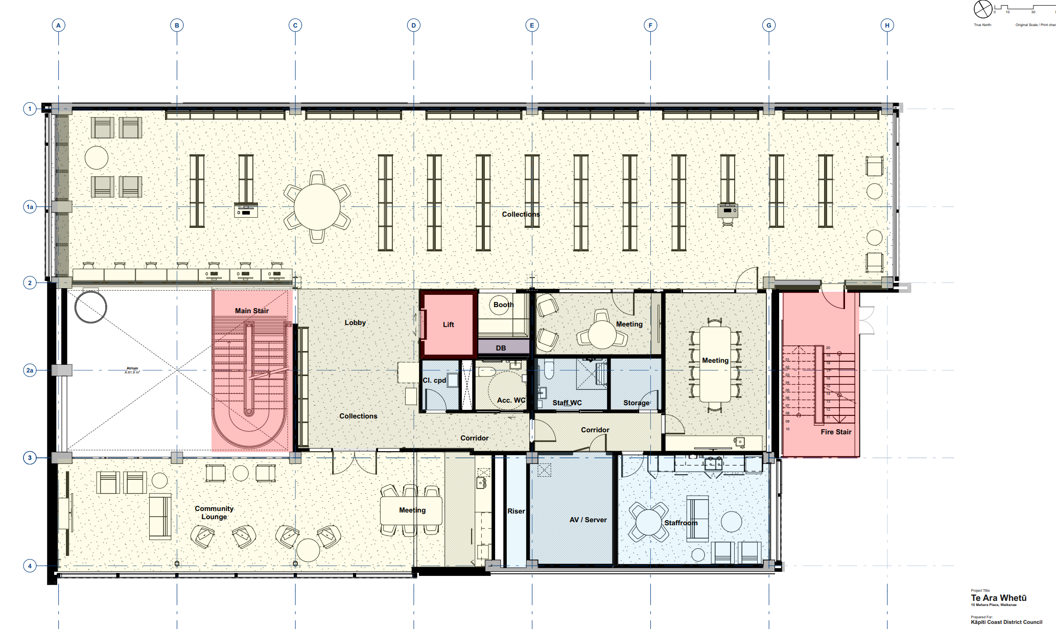
Developed design drawings
Click to zoom:
- Ground Floor – Developed Design – Te Ara Whetū [JPG 1.2 MB]
- First Floor – Developed Design – Te Ara Whetū [JPG 1.34 MB]
- Second Floor – Developed Design – Te Ara Whetū [JPG 1.2 MB]
Background
The Waikanae library building was closed in November 2018 due to poor air quality, and a temporary library opened in July 2019.
We’ve had advice from a range of specialists, and we’ve tested a lot of thinking along the way with our community advisory group, the Waikanae Community Board, mana whenua, and others.
Modern libraries are changing; they’re more of a community hub offering a wide range of activities and experiences. They connect, strengthen, inspire, and activate their communities.
We have a unique opportunity to reimagine what a new library facility could offer our changing community.
We looked at options and limitations around a physical space, what property Council already owns, and the possible impacts of purchasing more.
We also took into account:
- previous engagement, which told us the new facility must be in Mahara Place
- the right sized facility for the predicted 2051 Waikanae population of 24,500 people
- how we can minimise further disruption to businesses and the community in Mahara Place, which has already endured several years of construction
- avoiding replicating services that are, or could be, delivered by other providers.
Following an extensive engagement process between 12 June and 22 July 2023, Council agreed to refurbish and extend the former library building to provide a warm and welcoming multi-functional space. This option is budgeted for in our current Long-term Plan and does not preclude us from looking at how we incorporate other options in the future.
Te Ara Whetū flythrough | Developed Design
Te Ara Whetū – gifting of a name
Te Ara Whetū means the passage of stars. It’s a reference to the term Te Ara Whetū ki Uta, ki Tai - the passage of the stars from the mountains to sea. In this case, ‘from mountains to the sea’ refers to the view from the Tararua Ranges to where the Waikanae River meets the Tasman Sea.
Te Āta Awa ki Whakarongotai gifted the name to recognise the location the building sits in. The area around Mahara Place area is steeped in Māori history and it’s proper to recognise this significance in public facilities.
Although the word "library" isn't in this name, Te Ara Whetū will be a library first and foremost. More than using the term library, Te Ara Whetū links the library to the heritage, significance and uniqueness of its location.
Te Āta Awa ki Whakarongotai decided the time was right to gift the name so our designers can incorporate concepts which sit behind the name into the library’s design.
Timeline
| Date | Activity |
|
31 August 2023 |
Council voted to progress work to refurbish and extend the former library |
|
Early-to-mid 2024 |
Building condition assessment – determining/confirming the structural condition and strength |
|
Early 2024 |
Internal strip out of building and decontaminate if needed |
| September to October 2024 |
Concept design |
| October to December 2024 |
Preliminary design - refining the approved concept including selecting major elements such as structural system, building services and materials. Identifying preferred procurement method. Updating cost estimate. |
| Early 2025 | Lodge Resource consent – ensures the building complies with local environmental regulations, including the district plan and regional plans. |
| Early 2025 | Procure main contractor - bringing the contractor on board before the design is finalised allows them to provide buildability and innovation advice into the design. This avoids late changes which can be expensive. |
| Dec 2024 to April 2025 |
Developed design - scoping of all major elements, such as structural elements, building services, materials and finishes are coordinated and finalised. Confirming the building’s aesthetics and functionality. A firm estimate of cost is prepared. |
| May to July 2025 | Detailed design - completing the design to a level that clearly defines the quantity and quality of all building elements, materials and systems through drawings, specifications, and schedules. |
| Mid-2025 | Building consent - ensures the building project complies with the Building Code, eg safety and accessibility standards. |
| Mid 2025 to late 2026 | Construction |
| Late 2026 | Opening! |
Project objectives
The project objectives describe what we aim to deliver for our community with this new facility. The feedback we received on these objectives will help guide location of the new library, and the design and functions the new facility offers, including:
- supporting communities to connect
- building healthy and resilient individuals and community
- creating a sense of place and belonging
- providing opportunities to learn, work, and create
- supporting cultural identity and understanding
- championing inclusivity
- providing an exemplar for sustainable practices.
- Waikanae Library – Summary of Community Engagement August 2023 [PDF 2.82 MB]
- Waikanae Library feedback brochure [PDF 2.14 MB]
- Contractor appointed to build Te Ara Whetū
- Council settles on building option for Te Ara Whetū (27 June 2024)
- Te Ara Whetū – Te Ātiawa ki Whakarongotai gifts a name for the new Waikanae Library (15 May 2024)
- Designer appointed for new Waikanae Library replacement (14 Feb 2024)
- New Waikanae Library replacement gets the green light (1 Sept 2023)
- Council now seeking community views on options for the new Waikanae Library replacement (12 June 2023)
- Waikanae Library closed for urgent maintenance (28 Nov 2018)


