Paekākāriki seawall
February 2025
Following the decision to replace the Paekākāriki seawall with a like-for-like timber wall, we budgeted $17 million over seven years in our Long-term Plan 2024-34.
Staging construction will help minimise community disruption and smooth the financial impact of this significant investment.

A condition survey was carried out on the wall last year and we plan to replace the most damaged sections first. This could change however because we need to avoid penguin habitats during their breeding season. A sudden change in the condition of the wall could also mean we need to change the order we replace sections. We continue to monitor the wall.
We have worked with a consultant and a local construction company to design the new seawall. Construction will begin around May/June 2025. The accessway near Campbell Park is programmed to be built in 2028/29. It’ll provide accessible access to the beach and incorporate art features.
Background
The current seawall has deteriorated and needs to be replaced to continue to protect the road and other public infrastructure. The areas on top of the seawalls are accessways for seawall maintenance vehicles, not walkways, so we can’t build anything that gets in the way, like steps that run from the road to the beach.
Following consultation with the community for the Long-term Plan 2018–38 it was agreed that Council would replace the wall with a concrete and rock replacement. However, since then costs and conditions have changed and this option is now unaffordable.
In the Long-term Plan 2021–41, Council recommended and agreed to rebuilding the wall in timber, incorporating improved beach access and artistic elements agreed with the community. More than 70 percent of people who had their say on the seawall during consultation agreed with this approach.
The timber wall will cost approximately $17 million and will be built in stages over the next five years. The staged approach better suits local contracting companies and will enable us to plan construction for when the weather is more reliable. The wall’s design life will be 25–30 years.
Design
As far as possible we will incorporate the objectives of the Paekākāriki Seawall Design Group and the Paekākāriki Community Board. This includes improving access to the beach for all users and incorporating an art and cultural thread in the design.
Affordability will continue to be a key consideration because Council must balance the community's aspirations with the need to apply a fair and consistent approach to coastal management across the district while continuing to operate within its financial means.
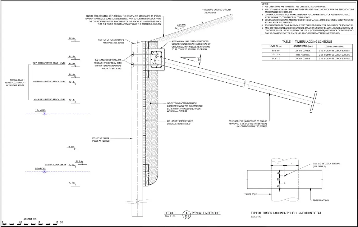
Plans

See larger image [JPG 121 KB].

See larger image [JPG 170 KB].
- Paekākāriki Seawall Community Presentation (12 Feb 2017) [PDF 828 KB]
- Paekākāriki Seawall Preliminary Design Drawings [PDF 5.04 MB]
- Paekākāriki Seawall Resource Consent Application (March 2016) [PDF 16.87 MB]
- Paekākāriki Seawall Resource Consent Certificate [PDF 234 KB]
- Paekākāriki Seawall Resource Consent Officer's report (2 May 2016) [PDF 463 KB]
- Shovel-ready projects identified to help Kāpiti recovery (7 May 2020)
- Plan for building a stronger Kāpiti adopted (28 June 2018)
- Paekākāriki seawall construction delayed (21 Aug 2017)
- Design of new Paekākāriki Seawall progressing (17 Feb 2017)
- Council plans for the year ahead take shape (10 June 2016)
- Consent for Paekākāriki seawall (5 May 2016)
- Kāpiti residents could face a lower than projected rates rise (18 March 2016)
- Paekākāriki seawall upgrade gets green light (2015)